Eladó Ikerház, Gödöllő

#2518004

Eladó Ikerház

109.9 millió Ft

Gödöllő
Alapterület:
103 m2
Szobák száma:
4
Állapot:
Új építésű
Építési mód:
Tégla
ÁRCSÖKKENÉS
ÚJ ÉPÍTÉSŰ

Kérjen személyes bemutatást!
Adja meg adatait, és hogy mikor érne rá!

Az Adatkezelési tájékoztatót elolvastam és elfogadom.

Megfelelő időpontok

Hétköznap délelőtt
Hétköznap délután
Hétköznap este
Hétvégén délelőtt
Hétvégén délután
Hétvégén este
Kérés elküldése
450 m2
Hőszigetelt
Hőszivattyú
1
Összkomfort
Bevezetve (230 Volt)
Van, saját vízórával
Közműhálózatba bekötve

Gödöllő központhoz közeli részén, csendes, újépítésű házakkal körbevett utcában, megbízható referenciákkal rendelkező kivitelező által épülő, modern nappali + 3 szobás ikerházfél eladó!

Műszaki paraméterek:
- 30-as Porotherm tégla falazat + 15cm dyrvit szigetelés,
- beton cserépfedés,
- födémen 30cm vastag kőzetgyapot, aljzaton 15cm, lábazaton 13cm szigetelés,
- 3 réteg üvegezésű, 5 légkamrás műanyag nyílászárók,
- hőszivattyú padlófűtéses hőleadással, 
- Gree 3.5 kw-os klíma,
- dupla 30-as fal választja el a másik oldaltól,
- energetikai besorolása: A

Ár tartalmazza:
- 5 ponton záródó hőszigetelt bejárati ajtót 170.000.-Ft,
- beltéri ajtókat bruttó 75.000.-Ft/db,
- hidegburkolatokat 8.000.-Ft/nm,
- melegburkolatokat 7.000.-Ft/nm, 
- kádat 100.000 Ft/db,
- csaptelepeket 15.000-25.000.-Ft, 
- standardmosdókat 25.000.-Ft/db
- tartályos vagy beépíthető fali Wc-t: 80.000 Ft/db értékben.

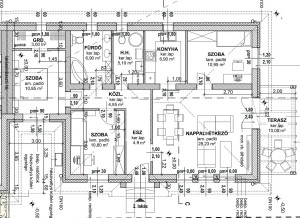
Elosztás:
- Előszoba, nappali-konyha-étkező, közlekedő, 2 szoba, fürdő, vendégmosdó, háztartási helyiség + 10nm terasz

Telek:
- 460nm-es telekre épül az ingatlan, az udvarban gyalogos bejáró és fedett kocsibeálló kerül kialakításra.
- Utcafronti kerítés: 20-as zsalukő, a mezők között fenyő vagy igény szerint gondozásmentes alu/lemezkerítés is kérhető.
- Terasz burkolva, lépcsővel, korláttal lesz átadva.

Környék:
- Csendes, nyugodt, központhoz közeli részen helyezkedik el.
- Helyi busz, hév, autópálya, iskola, óvoda, közért stb. percek alatt könnyen elérhető!

Az ingatlant több referenciával rendelkező, megbízható kivitelező építi! Burkolatok, belső ajtók a vevői igényei szerint még szabadon választhatók!

Komoly érdeklődés esetén a referencia házak személyesen is megtekinthetők!

Kérésre teljes műszaki tartalmat, alaprajzot szívesen küldünk!

Irányár: 109,9Mft

Hivatkozási szám: 2518004.

Megtekinthető telefonos időpont egyeztetés alapján:

Sápi Balázs +36 20 772-2429 sapibalazs@godolloi.hu 
GÖDÖLLŐ INGATLANKÖZPONT - www.godolloi.hu: Gödöllő és környéke legnagyobb ingatlan választéka /Gödöllő, Szada, Veresegyház, Kistarcsa, Kerepes, Erdőkertes, Fót, Dunakeszi/ eladó-kiadó családi ház, telek, lakás! Ingatlan építés és felújítás!

 



Lakástakarék, babaváró hitel és jelzáloghitel közvetítésben együttműködő partnerünk a Hitelnet Kft. A kalkulátor üzemeltetője a hitelnet.hu.

Kérdése van?
Adja meg adatait és felhívjuk!

Az Adatkezelési tájékoztatót elolvastam és elfogadom.
Üzenet küldése